项目介绍

项目名称:金华世家
开 发 商:山西瑞宸房地产开发有限公司
项目地址:壶关县公安局向西300米
房屋性质:小高层、洋房住宅,住宅底商、独立商业
项目价值:九大核芯优势 安家置业无忧
城市向北 潜力新区
低密准现 诗意栖居
优质医疗 健康无忧
书香氤氲 学府为邻
路网通达 出行便捷
生态社区 四季皆景
简约中式 大雅世家
以人为本 都会生活
实景准现 安心置业


预售许可证办理情况
1、2、3、4号楼,(2023)壶商房预售字第010号
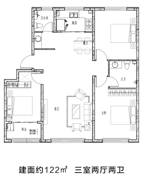
主力户型图




夏季线上房地产展销周专属优惠活动
1、到访有礼:活动期间到访即送精美礼品一份;
2、成交有礼:
①认购1、2号楼洋房住宅,可享受优先特惠购车位(具体价格详询售楼部工作人员);
②认购3、4#楼住宅,送价值2万元自选家装补贴(自购凭正规发票报销)。
