项目介绍

京珠·华庭雄踞东湖畔新城核心,2020年山西京珠万浩置业有限公司以城市美好生活运营家,打造东湖畔新中式人居地标建筑。项目总占地62亩,一楼带小院,顶层空中四合院,俯瞰襄垣东湖美景,实景园林景观,绿化占比达37.38%,容积率仅2.35,名校相伴,私属优质教育,实景现房,即买即住.
贵宾热线:3530666/999
开发商:山西京珠万浩置业股份有限公司
项目地址:襄垣县滨河东路政务大厅往北300米京珠华庭展示中心





预售许可证办理情况
2021晋商房预售襄字第20号
2022晋商房预售襄字第02号
2023晋商房预售襄字第15号
山西京珠万浩置业有限公司京珠华庭项
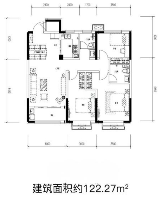
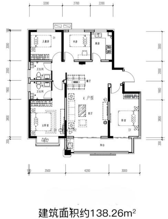
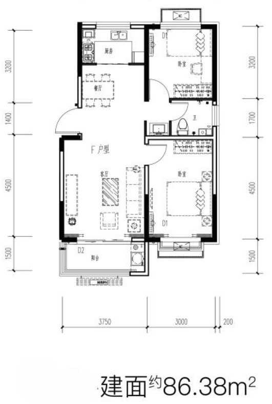
主力户型图




夏季线上房地产展销周专属优惠活动
1点 2024年长治市夏季房地产线上展销周期间额外享98折优惠。
2点 到访有礼,生活用品洗脸盆、洗菜篮进店看房即送。
3点 成交有礼,活动期间购房赠小家电一台茶吧机、空气炸锅。
